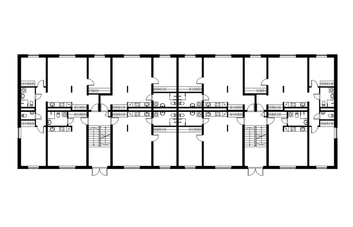
Loopealse munitsipaalhooned
Asukoht: Meeliku tn. 22, Tallinn
Autorid: Toivo Tammik, Mart Rõuk (5-korruselised mahud)
Konkurss: 2005 kutsutud arhitektuurikonkurss, 1. koht
Projekt: 2006
Ehitus: 2007
Netopind: 20 000m²
Tellija/ehitaja: Skanska EMV AS

