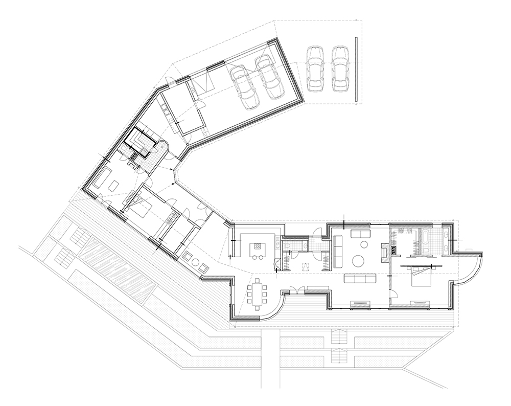
Röa küla, Järva maakond

Asukoht: Anstu maaüksus, Röa küla, Padise vald, Järva maakond
Autorid: Toivo Tammik, Mart Rõuk, Moonika Liias, Karina Niinepuu, Veiko Vahtrik
Projekt: 2012
Netopind: 360.4 m² 
Tellija: Eraisik

ERAMU&korter

Sügis 2012Omaniku näoga Merirahu galeriimaja

KAHN

KUNST.EE 2012
LOUIS KAHN erinumber

Allan Murdmaa. Monumentaalne

Autor: Toivo Tammik
Toimetaja: Reet Varblane 

Uudiste arhiiv